Get Maisons Individuelles Plan De Maison Moderne D Architecte Gratuit UK

Get Maisons Individuelles Plan De Maison Moderne D Architecte Gratuit UK. Comme un architecte est le logiciel en ligne qui permet de créer rapidement des plans de maison. Spécialisé dans la construction de maisons individuelles depuis 1952, maisons clair logis concilie l'envergure d'un constructeur de maisons national avec la proximité d'un acteur.

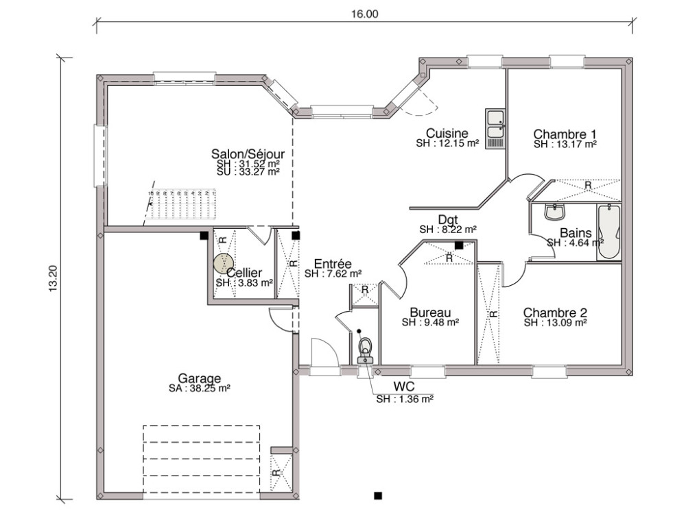
plan maison moderne pdf | Plan maison plain pied, Plans ...
plan maison moderne pdf | Plan maison plain pied, Plans ... from i.pinimg.com
Conçu par les experts ooreka. Dénichez parmi notre gamme de plans de maisons gratuits. Vous souhaitez faire construire une maison moderne ou contemporaine ?

Logiciel 3d gratuit pour le souci du détail se remarque facilement :

199 plans cotés à télécharger pour faire construire votre maison. 426 plans de maisons originales, contemporaines, modernes ou traditionnelles et des plans gratuits. Modèle plan de maison gratuit. L'architecte et décorateur en herbe pourra, par.

Posting Komentar

Lebih baru Lebih lama